立式多流束旋翼液封式冷水表LXSY-(15~25)V
LXSY是一種用于測量冷水流量的多流束水表,能測量任何水質包括極其硬質的、含垢的或含有懸浮顆粒的水質,這是因為字輪被密封在特殊的液體中,并配有壓力補償裝置,這樣密封的字輪不會接觸到流經水表的水,使得讀數永遠清晰易讀。
☆ 內部濾網,擁有充分的過濾面積。
☆ 機芯由耐磨、防水、防磁、防垢的塑料材料制造。
☆ 機械傳動,不受外來磁場或水中鐵屑影響。
☆ 兼有濕式水表和干式水表的優(yōu)點而克服了這兩種水表自身結構上的缺陷。
工作條件:
☆ 水壓:不大于1.0MPa(10bar)
☆ 水溫:0.1℃~50℃
示值誤差:
從分界流量(包括分界流量)到過載流量為±2%;
從最小流量到分界流量(不包括分界流量)為±5%.
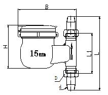
參數尺寸 SPECIFICATION AND OVERALL DIMENSIONS
|
名稱
Description
|
公稱口徑
Nominal size
|
過載流量(Q4)
|
常用流量(Q3)
|
分界流量(Q2)
|
最小流量(Q1)
|
最小讀數
Min.
|
最大讀數
Max.
|
L1
|
L
|
H
|
B
|
D
|
d
|
|
單位
Unit
|
mm
|
Inch
|
m3/h
|
m3/h
|
L/h
|
L/h
|
L
|
m3
|
mm
|
Inch
|
|
主要參 數尺寸
|
15
|
1/2
|
3.125
|
2.5
|
50
|
31.3
|
0.05
|
99999
|
96
|
191
|
113
|
142
|
G3/4B
|
R1/2
|
|
20
|
3/4
|
5
|
4
|
80
|
50
|
0.05
|
99999
|
100
|
205
|
115.5
|
157
|
G1B
|
R3/4
|
|
25
|
1
|
7.875
|
6.3
|
126
|
78.8
|
0.05
|
99999
|
110
|
230
|
126
|
174
|
G1-1/4B
|
R1
|
外形尺寸 OVERALL DIMENSIONS

示值誤差限與流量曲線FLOW-ERROR CURVE 壓力損失曲線 Pressure loss curve